Építészet
Középület
Köztér
Lakóépület
Határok
Műterem
Kapcsolat
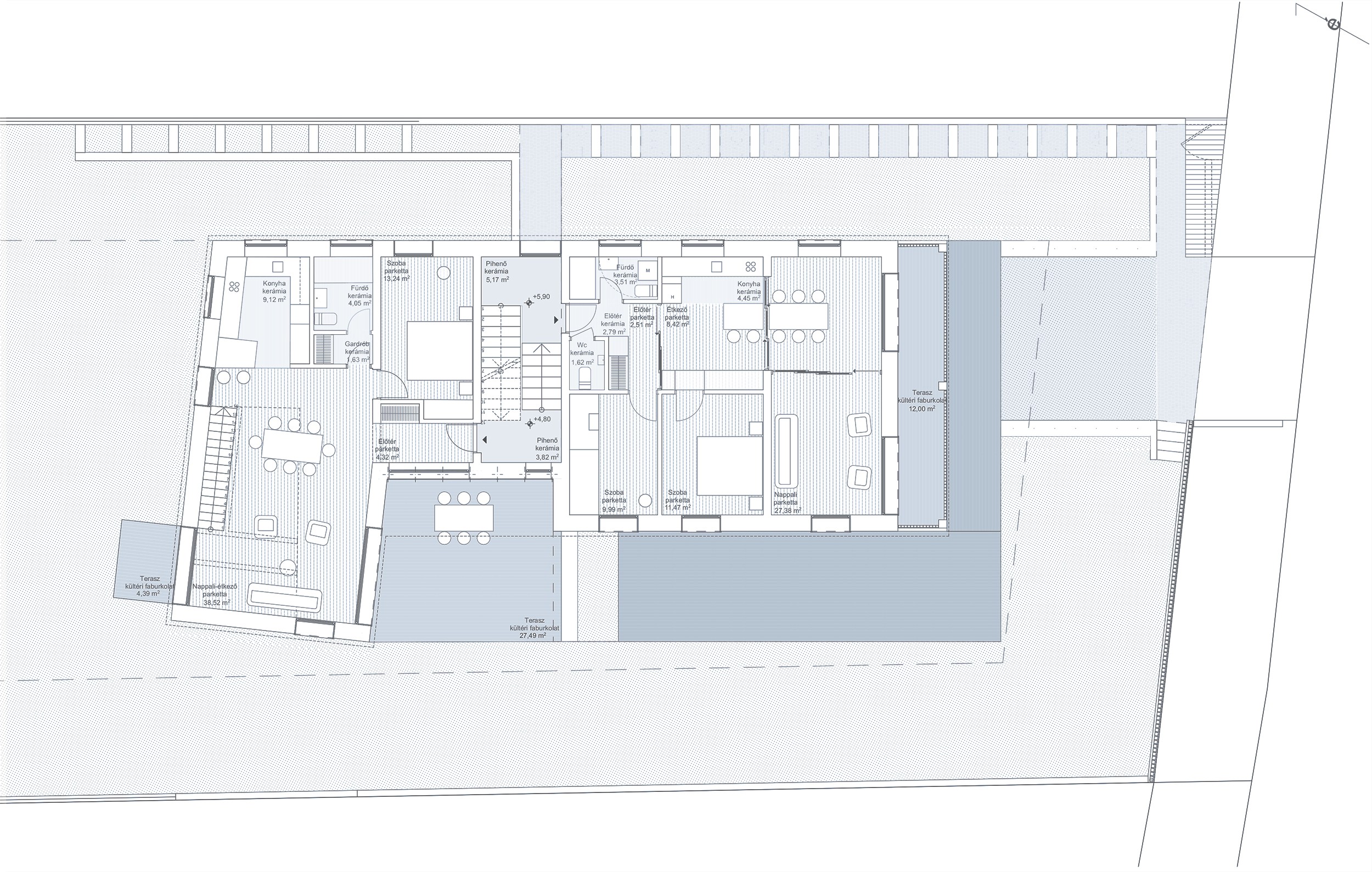
Lakóépület
generációs társasház Madárhegyre
2022-23
engedélyezési terv
Alkotók:
Fridrich László, Kőhalmy Nóra
×
1 / 8
2 / 8
3 / 8
4 / 8
5 / 8
6 / 8
7 / 8
8 / 8
❮
❯