Építészet
Középület
Köztér
Lakóépület
Határok
Műterem
Kapcsolat
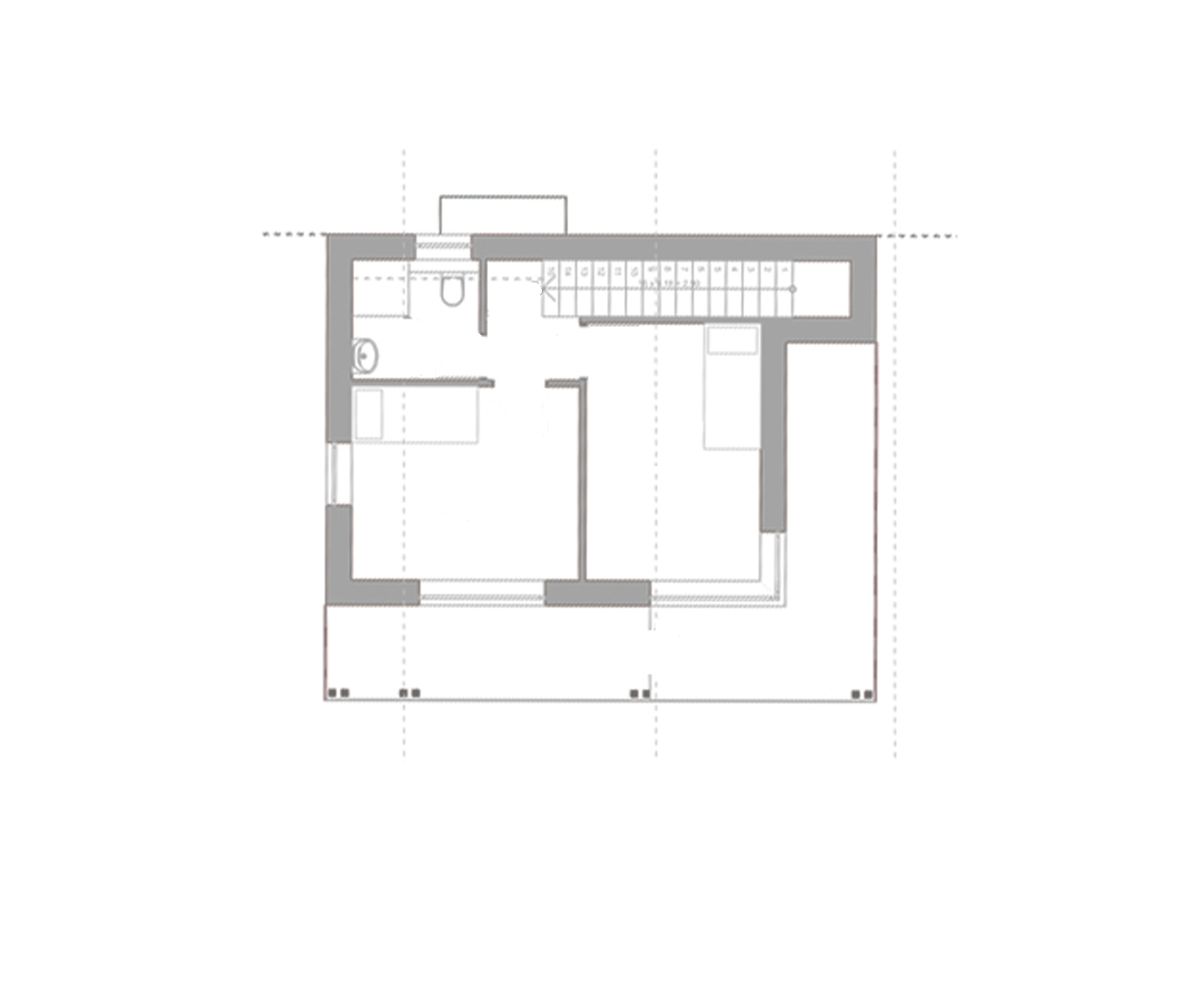
Lakóépület
Kertvégi családi ház
2021
Alkotó:
Fridrich László
×
1 / 6
2 / 6
3 / 6
4 / 6
5 / 6
6 / 6
❮
❯